Grundstück benötigt Baurecht für das Bergstedt WohnQuartier – Ein Ort für alle Lebensphasen
Zukunftsorientiertes Wohnen in Bergstedt
Das Projekt „Bergstedt WohnQuartier“ stellt eine einzigartige Wohnmöglichkeit für alle Lebensphasen dar, die darauf abzielt, sowohl junge Familien als auch ältere Bürger anzusprechen. Die Entwicklung dieses Quartiers benötigt jedoch eine entscheidende Zusage in Form von Baurechten, um die Planung und den Bau von vielseitigen Wohnformen zu ermöglichen. Die Gewährung von Baurechten wird nicht nur den Bau von qualitativ hochwertigen Wohnungen ermöglichen, sondern auch die Entwicklung von Gemeinschaftseinrichtungen fördern, die zur Lebensqualität aller Bewohner beitragen. So wird das Bergstedt WohnQuartier zu einem Ort, der Lebensraum, Komfort und Gemeinschaft in einer idyllischen Umgebung vereint.
Erlangung von Baurecht wegen Geeignetheit des Grundstücks
- Ausgangslage
- Bebauungsplan
- Magistralentwicklung
- Baugesetzbuch
- Baulandmobilisierungsgesetz
- Geeignetheit: Einzelfall nach § 31. Nr. 3 BauGB
- Biotopvernetzung?
- Nachbarliche Interessen
- Öffentliche Belange
- Archäologischer Vorbehalt
- Ausgleichsflächen
- Landesbauordnung
- Bauvorbescheid
- Bauantrag
- Blockrandstreifen
- Vorkaufsrecht
- Planungsrecht
- Baurechtliche Genehmigung
- Vermessungsplan
- Bodengutachten
Wohnprojekt für Bergstedt: Bergstedt Wohnquartier
Wir wollen ein Quartier für altersgerechtes Wohnen in Bergstedt entwickeln. Dazu wollen wir unsere Grundstücke an der Bergstedter Chaussee 36, 22395 Hamburg mit einer Gesamtfläche von 7.542,00 m² nutzen. Es handelt sich um die Flurstücke 743 (derzeitig mit einem Einfamilienhaus bebaut) und 1535 (2004 von der SAGA Siedlungs-Aktiengesellschaft erworben).
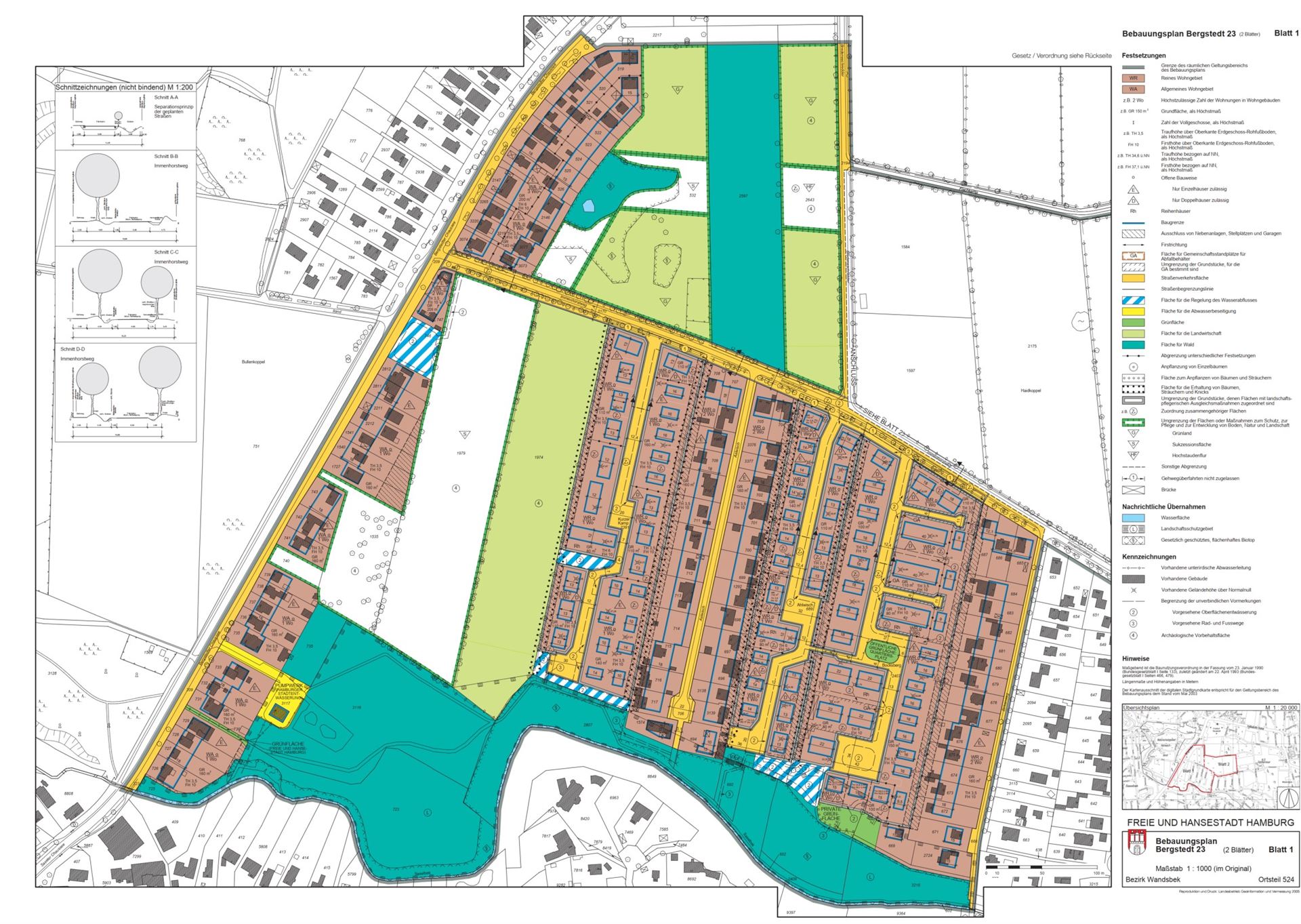
Vorhaben im Rahmen eines Bebauungsplans
Der Bebauungsplan regelt, wie Grundstücke in einem bestimmten Gebiet genutzt werden dürfen. Es geht um die Flurstücke 743 und 1535. Siehe auch Bebauungsplan Bergstedt 23 (nebst Erläuterung) und Liegenschaftskarte.
Einbettung in Hamburger Strategie zur Magistralentwicklung
Auf den Internetseiten der Stadt HH wird „Ein Masterplan für Hamburgs Magistralen“ vorgestellt. Dabei setzt die Stadt HH darauf, „bislang ungenutzte Potenziale einer „dreifachen Innenentwicklung zu heben“, und zeigt damit, wo im Zuge der Baulandmobilisierung Schwerpunkte zu setzen sind.
Dabei soll Hamburg Altona eine Vorreiter-Rolle zukommen. Das Bundesinstitut für Bau- Stadt- und Raumforschung schreibt in seiner Veröffentlichung „Strategien und Instrumente zur Aktivierung von Innenentwicklungspotenzialen an Magistralen in Hamburg – am Beispielprojekt: Quartiersverdichtung entlang von Hauptverkehrsstraßen im Bezirk Altona“ in der Darstellung der Ausgangssituation:
Hierfür wurde durch das Bezirksamt Altona ein hohes Verdichtungspotenzial entlang der Magistralen festgestellt, das bislang noch nicht in nennenswertem Umfang aktiviert werden konnte. Neben erheblichen Potenzialen für den Wohnungsbau besteht dort auch die Chance, an bisherigen Durchgangs- und Zwischenräumen neue urbane Qualitäten zu erzeugen sowie die Wohn- und Aufenthaltsqualität zu verbessern. Diese Potenziale und Chancen sollen beispielgebend für die Gesamtstadt im Rahmen des Modellvorhabens herausgearbeitet werden.“
- siehe auch Bericht des NDR
- siehe auch Abschlusspräsentation: Die Magistralen in Wandsbek
Im Konzept wird es konkreter:
„Handlungsschwerpunkt des aktiven Innenentwicklungsmanagements ist zum einen die Umwandlung und verdichtete Neubebauung von Einfamilien- und Reihenhausquartieren zugunsten von nachfrage- und insbesondere altersgerechtem Wohnen im Geschosswohnungsbau.“
Einklang mit der zukünftigen Stadtentwicklung
Somit befinden wir uns mit unserem Vorhaben im Einklang mit der zukünftigen Stadtentwicklung. Insbesondere sehen wir in Bergstedt mit einer derzeitigen Bevölkerungsdichte von 1.530 Einwohnern auf einem km² ein großes Potential einer Nachverdichtung entlang der Magistralen. Dazwischen liegende Flächen müssen durch weitere Bebauung dann nicht mehr so belastet werden. Dort kann durch Vernetzung noch Biodiversität erhalten werden. Die Magistralen stellen für Tiere ohnehin unüberwindliche Barrieren dar und bieten die nachhaltigsten Bebauungsmöglichkeiten. Insbesondere sorgt altersgerechtes Wohnen im Quartier dafür, dass zahlreiche durch Ältere bewohnte Einfamilienhäuser frei werden: Platz für Familien entsteht, der Wohnraumeffekt verstärkt sich deutlich.
Die Magistral-Entwicklung im Rahmen neu verabschiedeter Bebauungspläne erfordert Jahrzehnte Zeit. Damit Städte und Gemeinden flexibler reagieren können, wurde im Rahmen der Baulandmobilisierung der § 31, Nr. 3 in das Baugesetzbuch übernommen, der bei Vorlage eines angespannten Wohnungsmarktes die Möglichkeit eröffnet, im Einzelfall Baugenehmigungen ohne eine neue Bauplanung zu erteilen.
Baugesetzbuch (BauGB)
Das Baugesetzbuch (BauGB) bildet die rechtliche Grundlage für die städtebauliche Entwicklung und Ordnung in Deutschland.
Siehe hierzu auch Handreichung zur Anwendung des § 31 Absatz 3 des BGB.
Erweiterte Instrumente
Das Baulandmobilisierungsgesetz bietet erweiterte Instrumente wie z. B. das Vorkaufsrecht der Gemeinde, städtebauliche Entwicklungsmaßnahmen und die Erleichterung der Nachverdichtung. Diese Instrumente sollen insbesondere die Schaffung von Wohnraum fördern.
Siehe hierzu die Stellungnahme des Hamburger Senats und Stellungnahme der Behörde für Stadtentwicklung und Umwelt.
Geeignetheit des Grundstücks: Begründung eines Einzelfalls nach § 31. Nr. 3 BauGB
Der Grund der Befreiung liegt in der Möglichkeit, den angespannten Wohnungsmarkt deutlich durch den Bau eines Quartiers für altersgerechtes Wohnen zu entlasten, dass nur auf einer entsprechend geeigneten Grundstücksfläche entwickelt werden kann. Das Grundstück, das einen direkten Zugang zur Magistrale B 434 hat, über die für das Quartier notwendige Grundstücksfläche verfügt und aufgrund seiner rückwärtigen Lage zur ersten Baulinie eine ideale Kombination aus Anbindung und Naturnähe darstellt, gibt es nach unserem Wissen nur einmal im Plangebiet.
Ausnahme und Befreiung nach § 31 BauGB – ein Update
Professor Dr. Andreas Decker, Richter am Bundesverwaltungsgericht, schreibt in seinem Aufsatz „Ausnahme und Befreiung nach § 31 BauGB – ein Update“ aus dem Januar 2024 zum Vorliegen eines für die Genehmigung erforderlichen Einzelfalls:
„Mit der Anforderung, dass eine Befreiung nach § 31 III BauGB nur im Einzelfall erteilt werden darf, hat der Gesetzgeber das in § 31 II BauGB durch das BauROG 1998 entfallene Einzelfallerfordernis (vgl. oben) wiederaufgegriffen, sodass eine Befreiung in einem Gebiet mit angespanntem Wohnungsmarkt zwar einerseits unter Verzicht auf diverse besondere Befreiungsvoraussetzungen nach § 31 II BauGB ermöglicht wird, andererseits diese – als Grenze eines verbleibenden Erfordernisses einer Planänderung durch den Normgeber – atypische Verhältnisse, also einen an sich dem Schutzgut der Norm entzogenen Ausnahme- und Sonderfall, voraussetzt. Ein danach für die Einschlägigkeit des Befreiungstatbestands nach § 31 III BauGB zu fordernder „Einzelfall“ im Sinne einer atypischen Fallkonstellation liegt damit in Anlehnung an die Rechtsprechung zu § 31 II BauGB aF dann nicht vor, wenn die Gründe, die für eine Befreiung streiten, für jedes oder nahezu für jedes Grundstück im Planbereich gegeben wären bzw. wenn sich eine vergleichbare Rechtfertigungssituation innerhalb des Plangebiets in einer erheblichen Zahl gleichgelagerter Fälle einstellen könnte.“
Daraus kann nur geschlussfolgert werden, dass es sich hier um einen Einzelfall handeln muss.
Unser Wohnprojekt ist aus den folgenden Gründen ein Einzelfall:
Wir planen keine Einfamilienhäuser, sondern ein mehrgeschossiges Quartier für altersgerechtes Wohnen.
Unsere Grundstücke verfügen nach unserem Wissen als einzige im Plangebiet über die notwendige Größe, um ein derartiges Wohnprojekt zu realisieren.
Daraus resultiert ein optimales Verhältnis von Wohnraum zu Flächenverbrauch.
Die direkte Anbindung an die Magistrale Bergstedter Chaussee, in Verbindung mit der Möglichkeit, nicht nur in der ersten Baulinie agieren zu können, ist ebenfalls einmalig im Plangebiet.
Durch den Einsatz des Grundstücks an der Magistrale kann auf Bebauungen von Grundstücken, die unter Gesichtspunkten der Biodiversität deutlich wertvoller sind, verzichtet werden.
In der Begründung zum Bebauungsplan ist zu lesen:
„Die Fläche hat zusammen mit dem angrenzenden Flurstück 740 eine wichtige Funktion in der Biotopvernetzung nach Westen and soll daher durch die getroffene Ausweisung geschützt werden.“
Das Flurstück 1979 ist hierzu als Sukzessionsfläche ausgewiesen, wird jedoch seit Jahrzehnten landwirtschaftlich als Ackerfläche intensiv genutzt.
Verkehrsbelastung
Die damalige Bundesstraße 434 war schon zum Zeitpunkt der Aufstellung des Bebauungsplanes sehr stark befahren. Auf hamburg.de wird die Verkehrsbelastung auf der Bergstedter Chaussee vor der Kreuzung Volksdorfer Damm stadteinwärts bereits mit 16.000 pro Tag angegeben.
An dieser Kreuzung wird nochmals erheblicher Verkehr zugeführt, sodass an der nächsten großen Kreuzung Saseler Chaussee / Stadtbahnstraße bereits 27.000 KFZ pro Tag gezählt werden. Wir gehen daher davon aus, dass ca. 25.000 KFZ pro Tag die Bergstedter Chaussee 36 passieren.
Fachleute gehen davon aus, dass Straßen mit einem Verkehrsaufkommen von 10.000 KFZ pro Tag bereits eine unüberwindliche Barriere für Großsäuger darstellen, ganz zu schweigen von kleineren Tieren.
Barriereeffekte
So schreibt das Land Brandenburg, Ministerium für Umwelt, Gesundheit und Verbraucherschutz, in seiner Broschüre zum Biotopverbund Brandenburg, Teil Wildtierkorridore:
„Als wirksame Barrieren für Großsäuger wurden die Bundesautobahnen und Bundesfernstraßen eingestuft. Außerdem wurden die Schnellfahrstrecken des ICE als wirksame Barrieren eingestuft. Kanäle sind für die betrachteten Zielarten nur unüberwindbar, wenn Spundwände es Tieren unmöglich machen, sie zu durchschwimmen. Da uns keine Daten vorliegen, in welchen Bereichen Spundwände noch vorhanden sind, konnten wir diese Barrieren in unsere Karten nicht einstellen. Bei Straßen mit über 8000 Kfz/24h gehen wir von einer deutlichen Barrierewirkung aus. Bei Verkehrszahlen von über 15000 Kfz/24h und bei Zäunen entlang von Autobahnen werden diese als für die betrachteten Zielarten unüberwindbar eingestuft. Darüber hinaus wurden Siedlungen und ein Pufferbereich von 200 m um diese Siedlungen als Barrieren eingestellt.“
Der Wert vor unserer Haustür liegt bei ca. 25.000 KFZ pro Tag.
Würde die Straße ohne weitere Bebauung die Landschaft zerschneiden, wäre sie bereits ein Todesstreifen für Tierbewegungen. Nun kommen noch die Häuser und Zäune dazu.
Zudem konnte unsere Nachbarin gerichtlich eine Bebauung ihres Grundstücks 740 erstreiten. Dieses Grundstück, welches in Verbindung mit unserem Grundstück 1535 die Biotopvernetzung über die Bergstedter Chaussee gewährleisten sollte, wurde mittlerweile bebaut.
Wir wollen kurz zusammenfassen, warum die Biotopvernetzung auf dem Flurstück 1535 funktionslos ist:
Die Bergstedter Chaussee gilt als unüberwindbare Barriere
Die Grenzwerte der „nahezu völligen“ Barrierewirkung sind ca. 2,5 mal überschritten
Zusätzlich wirkt als Barriere ein Pufferbereich von 200 m um Siedlungen
Zusätzlich wurde das ebenfalls für die Biotopvernetzung 2006 eingeplante Flurstück 740 (Teil des geplanten Korridors) nach juristischer Klärung bereits bebaut
Unüberwindbarkeit
An befahrenen Hauptverkehrsadern wie der unsrigen kann eben keine Biotopvernetzung mehr stattfinden. Wegen deren Unüberwindbarkeit befinden sich aus Sicht des ökologischen Planers hier die bestgeeigneten Baugrundstücke. Denn wenn hier gebaut wird, muss nicht da gebaut werden, wo eine Biotopvernetzung zumindest noch graduell besteht. Biotopvernetzungen können sinnvoll nur zwischen Zerschneidungslinien geplant und aufrechterhalten werden.
Funktionslosigkeit der bauplanerischen Festsetzung
Wir verweisen auf eine Entscheidung des Verwaltungsgerichts Hamburg, vom 15.04.2024, AZ 12 K 1777/21, und den dort formulierten Leitsatz: „eine bauplanerische Festsetzung tritt wegen nachträglicher Funktionslosigkeit außer Kraft, wenn und soweit die Verhältnisse, auf die sie sich bezieht, in ihrer tatsächlichen Entwicklung einen Zustand erreicht haben, der eine Verwirklichung der Festsetzung auf unabsehbare Zeit ausschließt, und wenn diese Tatsache so offensichtlich ist, dass ein in ihre Fortgeltung gesetztes Vertrauen keinen Schutz verdient. Eine „antizipierte Funktionslosigkeit“ im Hinblick auf eine antizipierte künftige (und ggf. rechtswidrige) Befreiungspraxis gibt es nicht.“
Wenn eine bauplanerische Festsetzung aber schon wegen nachträglicher Funktionslosigkeit außer Kraft treten muss, dann doch allemal, wenn sie von vornherein als funktionslos anzusehen ist.
Würdigung nachbarlicher Interessen im Bergstedt WohnQuartier – Ein Ort für alle Lebensphasen
Die nachbarschaftlichen Interessen sind voll gewürdigt
Die Einbindung erfolgt über das Flurstück 743
Die erfolgreiche Integration des Bergstedt WohnQuartiers in das bestehende städtische Gefüge erfordert eine sorgfältige Würdigung der Interessen der Nachbarschaft. Dies umfasst die Berücksichtigung von Lärm-, Verkehrs- und Umweltbelangen, die Förderung sozialer Interaktion und der lokalen Gemeinschaft sowie die Berücksichtigung des Wohnrechts im Alter und des Wertzuwachses der Grundstücke.
Die Würdigung der nachbarlichen Interessen ist ein zentrales Element der Planung und Umsetzung des Bergstedt WohnQuartiers. Durch stimmige Lärmschutz- und Mobilitätskonzepte, Maßnahmen zum Umwelt- und Klimaschutz, Förderung sozialer Interaktion und Integration, Berücksichtigung des Wohnrechts im Alter, Wertzuwachs des Grundstückswerts sowie transparente Kommunikation wird sichergestellt, dass das WohnQuartier harmonisch in die bestehende Nachbarschaft integriert wird. Diese Ansätze tragen dazu bei, ein positives und kooperatives Miteinander zu fördern und die Lebensqualität für alle Beteiligten zu verbessern.
Das Bergstedt WohnQuartier respektiert und unterstützt das Wohnrecht älterer Menschen in der Nachbarschaft:
Inklusives Wohnkonzept: Förderung eines integrativen Wohnumfelds, das älteren Menschen in der Nachbarschaft den Zugang zu den Einrichtungen und Dienstleistungen des WohnQuartiers ermöglicht.
Partizipation: Einladung der älteren Nachbarn zur Teilnahme an Veranstaltungen und Aktivitäten im Quartier, um soziale Isolation zu vermeiden und die Gemeinschaft zu stärken.
Die bisherigen Reaktionen der Nachbarn auf das Projekt sind positiv, was eine solide Grundlage für die weitere Zusammenarbeit bildet:
Transparente Kommunikation: Fortsetzung der offenen und transparenten Kommunikation mit den Nachbarn, um Vertrauen zu erhalten und auszubauen.
Ein durchdachtes Verkehrskonzept hilft, die Verkehrslast auf die umliegenden Straßen zu minimieren:
Parkflächen für Elektrofahrzeuge: Bereitstellung von ausreichend Parkflächen im Untergeschoss für Elektrofahrzeuge, die das Verkehrsaufkommen auf den öffentlichen Straßen reduziert.
Förderung nachhaltiger Mobilität: Förderung der Nutzung von E-Bikes und Corporate Carsharing, um den Individualverkehr zu verringern.
Öffentliche Verkehrsanbindung: Gute Anbindung an den öffentlichen Nahverkehr, um den Bewohnern und Besuchern eine Alternative zum eigenen Auto zu bieten.
Das Bergstedt WohnQuartier trägt zur Aufwertung des gesamten Stadtteils bei, was sich positiv auf den Wert der umliegenden Grundstücke auswirkt:
Qualitätssteigerung: Hochwertige Bauweise und attraktive Gestaltung des WohnQuartiers steigern die Attraktivität und das Ansehen des Stadtteils.
Verbesserte Infrastruktur: Verbesserung der lokalen Infrastruktur durch neue Dienstleistungs- und Freizeitangebote, die auch den Nachbarn zugutekommen.
Vereinbarkeit des Bergstedt WohnQuartiers mit Öffentlichen Belangen
Das Bergstedt WohnQuartier ist ein zukunftsweisendes Wohnprojekt, das nicht nur den Bedürfnissen der individuellen Bewohner gerecht wird, sondern auch einen positiven Beitrag zur Erfüllung öffentlicher Belange leistet. Ein zentrales Argument hierbei ist die Befriedigung der Wohnbedürfnisse der Bevölkerung, welche durch den demografischen Wandel und den wachsenden Bedarf an altersgerechtem Wohnraum zunehmend an Bedeutung gewinnt.
Wohnbedürfnisse der Bevölkerung
Die demografische Entwicklung in Deutschland zeigt eine zunehmende Alterung der Gesellschaft. Laut Prognosen des Statistischen Bundesamtes wird der Anteil der über 65-Jährigen bis 2030 auf über 28 % steigen, während der Anteil der über 80-Jährigen bis 2050 voraussichtlich fast 14 % der Gesamtbevölkerung erreichen wird. Dies stellt die Städte und Gemeinden vor große Herausforderungen in Bezug auf die Bereitstellung angemessenen Wohnraums für ältere Menschen.
Das Bergstedt WohnQuartier bietet eine Vielzahl an Wohnformen, die speziell auf die Bedürfnisse älterer Menschen zugeschnitten sind:
Barrierefreies Wohnen: Alle Wohnungen sind nach DIN 18040-2 barrierefrei gestaltet, um Mobilitätseinschränkungen gerecht zu werden.
Ambulante und stationäre Pflege: Integration von ambulanten und stationären Pflegeeinrichtungen, die eine kontinuierliche Betreuung und Unterstützung gewährleisten.
Gemeinschafts- und Freizeiteinrichtungen: Bereitstellung von Gemeinschaftsräumen, Fitnessbereichen und kulturellen Angeboten zur Förderung der sozialen Interaktion und des aktiven Lebens im Alter.
Das WohnQuartier berücksichtigt die unterschiedlichen Lebensphasen und Bedürfnisse der Bevölkerung durch ein Angebot verschiedener Wohnformen:
Selbstbestimmtes Wohnen: Für Menschen, die unabhängig leben möchten.
Ambulant betreute Wohnformen: Für Personen, die gelegentliche Unterstützung benötigen.
Betreiberverantwortete ambulant betreute Wohnformen: Für Bewohner, die regelmäßige Betreuung wünschen.
Stationäre Einrichtungen: Für Personen mit hohem Pflegebedarf.
Lebensqualität im Quartier: Diese Vielfalt ermöglicht es den Bewohnern, innerhalb des Quartiers zu bleiben, selbst wenn sich ihre Lebenssituation ändert, was zur Stabilität und Kontinuität in ihrem Leben beiträgt.
Das Projekt trägt zur nachhaltigen Stadtentwicklung bei, indem es:
Flächeneffiziente Bauweise: Optimale Nutzung des verfügbaren Grundstücks von 7.500 qm durch viergeschossige Bauweise, die gleichzeitig den Bedarf an Wohnraum deckt und Flächenversiegelung minimiert.
Erneuerbare Energien und Energieeffizienz: Einsatz von erneuerbaren Energien und energieeffizienten Bauweisen, die den ökologischen Fußabdruck reduzieren.
Öffentliche und grüne Räume: Schaffung von Grünflächen und öffentlichen Räumen, die zur Lebensqualität beitragen und ökologische Funktionen erfüllen.
Das Bergstedt WohnQuartier wird sich harmonisch in das bestehende städtebauliche Umfeld integrieren:
Architektonische Gestaltung: Ansprechende und zeitgemäße Architektur, die sich an den bestehenden Bautypen orientiert und das Stadtbild bereichert.
Freiräume und Grünflächen: Gestaltung attraktiver Außenanlagen, die als Begegnungszonen und Erholungsräume dienen.
Das Bergstedt WohnQuartier unterstützt nachhaltige Mobilitätskonzepte:
Corporate Carsharing: Bereitstellung von Elektrofahrzeugen für die Bewohner, die zur Reduzierung des Individualverkehrs beitragen.
Fahrradinfrastruktur: Sicherer Fahrradkeller mit Lademöglichkeiten für E-Bikes fördert den umweltfreundlichen Verkehr.
Öffentliche Verkehrsanbindung: Gute Anbindung an den öffentlichen Nahverkehr erleichtert den Zugang zu städtischen Dienstleistungen und Angeboten.
Das Bergstedt WohnQuartier erfüllt eine Reihe von öffentlichen Belangen, die über die bloße Bereitstellung von Wohnraum hinausgehen:
Inklusive Gemeinschaft: Förderung eines inklusiven Wohnumfelds, das Menschen unterschiedlichen Alters und mit unterschiedlichen Pflegebedarfen integriert.
Generationenübergreifendes Wohnen: Schaffung von Wohnraum, der den Austausch zwischen den Generationen fördert und somit zur sozialen Kohäsion beiträgt.
Schaffung von Arbeitsplätzen: Das Projekt schafft Arbeitsplätze in den Bereichen Pflege, Verwaltung, Technik und Gastronomie.
Nachhaltigkeit: Reduktion des ökologischen Fußabdrucks durch energieeffiziente Bauweise und Nutzung erneuerbarer Energien.
Fazit
Das Bergstedt WohnQuartier trägt maßgeblich zur Erfüllung der Wohnbedürfnisse der Bevölkerung bei, indem es eine Vielzahl an altersgerechten und barrierefreien Wohnformen bietet. Durch die Integration in das städtebauliche Umfeld, die Förderung der sozialen Infrastruktur und die Unterstützung nachhaltiger Mobilitätskonzepte leistet das Projekt einen bedeutenden Beitrag zur nachhaltigen Stadtentwicklung und sozialen Kohäsion. Die umfassende Berücksichtigung öffentlicher Belange macht das Bergstedt WohnQuartier zu einem Modellprojekt für zukunftsweisendes, inklusives und nachhaltiges Wohnen.
Denkmalrechtlichen Genehmigung nach § 14 Hamburgisches Denkmalschutzgesetz vom 5. April 2013 durch das Archäologische Museum Hamburg
Auflagen im Rahmen der Bebauung wurden bereits mit dem Museum für Archäologie mit E-Mail-Schreiben von Frau Dr. Ada Dannenberg vom 26.06.2024 abgeklärt:
„Daher bedürfen geplante Baumaßnahmen, die mit Bodeneingriffen verbunden sind, der denkmalrechtlichen Genehmigung nach § 14 Hamburgisches Denkmalschutzgesetz vom 5. April 2013 durch das Archäologische Museum Hamburg. Für eine Genehmigung benötigen wir zur Beurteilung Angaben zu den geplanten Maßnahmen, sowie deren Lage und Eingriffstiefe. Die Genehmigung wird nach Prüfung dann unter Auflagen erteilt.
Die Auflagen könnten, je nach Vorhaben, wie folgt lauten:
Der Beginn der Erdarbeiten ist dem Archäologischen Museum Hamburg rechtzeitig, d. h. wenigstens 2 Wochen vorher, unter Nennung der Kontaktdaten des vor Ort zuständigen Bauleiters schriftlich anzuzeigen.
Die Terminierung und die Ausführung des Oberbodenabtrages ist im Vorfeld der Erdbaumaßnahmen mit dem Archäologischen Museum Hamburg abzustimmen.
Der maschinelle Oberbodenabtrag in den von Erdarbeiten betroffenen Flächen ist mit einem Bagger mit gerader Grabenschaufel im Beisein eines Mitarbeiters des Archäologischen Museum Hamburgs durchzuführen.
Archäologische Überreste, die beim Oberbodenabtrag entdeckt werden, sind fachgerecht durch Mitarbeiter des Archäologischen Museum Hamburgs auszugraben, zu dokumentieren und zu bergen.
Erst nach Freigabe der archäologisch untersuchten Flächen durch das Archäologische Museum Hamburg darf mit den Baumaßnahmen begonnen werden.
Personal- und Sachkosten einer durch das Bauvorhaben ausgelösten archäologischen Ausgrabung hat nach § 7 Abs. 5 Hamburgisches Denkmalschutzgesetz vom 5. April 2013 im Rahmen des Zumutbaren der Vorhabenträger zu tragen.“
Diese Auflagen werden aufwandsmäßig im Rahmen der Bebauung berücksichtigt.
Unser Grundstück ist auch keine Ausgleichsfläche
In der Begründung zum Bebauungsplan heißt es:
„Eingriffsbeschreibung, Minderungs- und Ausgleichsmaßnahmen im Geltungsbereich: Der Bebauungsplan bereitet Eingriffe vor, die die Gestaltung und die Nutzung von bisher landwirtschaftlichen Flächen verändern. Dies beeinträchtigt die vorhandene Leistungsfähigkeit des Naturhaushalts erheblich und verändert das Landschaftsbild nachhaltig. Für Maßnahmen zum Ausgleich der Eingriffe werden im Plangebiet die Flächen zum Schutz, zur Pflege und zur Entwicklung von Boden, Natur und Landschaft auf Teilen der Flurstücke 2643, 1584. 2175, 2879, 2880 und 2183 festgesetzt. Die Flächen haben eine Größe von etwa 23.200 m²:
Teilfläche von Flurstück 2643: 3.000 m²
Teilfläche von Flurstück 1584: 5.500 m²
Teilfläche von Flurstück 2175: 7.000 m²
Teilfläche von Flurstück 2879/2880/2183: 7.700 m²“
Die Flächen befinden sich, sofern überhaupt im Plangebiet, sämtlich und zusammenhängend nördlich des Immenhorstwegs.
Die Hamburgische Bauordnung (HBauO) ergänzt die Regelungen des BauGB und legt detaillierte technische Anforderungen für Bauprojekte fest
Barrierefreiheit: Verpflichtung zur barrierefreien Gestaltung von Wohn- und Gemeinschaftsbereichen.
Brandschutz: Einhaltung der Brandschutzvorschriften, einschließlich der Installation von Brandmeldeanlagen und der Schaffung sicherer Fluchtwege.
Energieeffizienz: Umsetzung der Energieeinsparverordnung (EnEV) zur Verbesserung der Energieeffizienz von Gebäuden.
Bauvorbescheid beantragen
Um frühzeitig Klarheit über planungsrelevante Aspekte eines Bauprojekts zu erhalten, kann ein Bauvorbescheid beantragt werden.
Ein Bauvorbescheid ist eine vorläufige Entscheidung der Baugenehmigungsbehörde, die Sie beantragen können, bevor Sie einen Bauantrag einreichen. Der Bauvorbescheid dient dazu, bereits im Vorfeld bestimmte Fragen in Bezug auf Ihr Bauprojekt zu klären. Das Verfahren ermöglicht es Ihnen, schnell Planungssicherheit hinsichtlich Ihres Vorhabens zu erhalten.
Der Bauvorbescheid ist besonders nützlich, um folgende Punkte zu klären:
Die rechtliche Zulässigkeit Ihres geplanten Bauprojekts
Sicherheit bezüglich der Planung
Klärung eventueller Abweichungen von baurechtlichen Vorschriften, die Ihr Vorhaben beeinflussen könnten (zum Beispiel Abstandsflächen)
Die Bebaubarkeit eines Grundstücks vor dessen Kauf prüfen zu lassen, um im Falle der Unbebaubarkeit Zeit und Kosten zu sparen
Vorraussetzungen
Wir müssen Ihr Bauvorhaben so detailliert beschreiben können, dass eine Entscheidung der zuständigen Stelle möglich ist.
Benötigte Unterlagen
Alle Dokumente, die erforderlich sind, um die durch den Vorbescheid zu entscheidenden Fragen zu beurteilen.
Dies können beispielsweise sein:
aktueller Auszug aus der amtlichen Liegenschaftskarte
Vermaßter Lageplan,
Bauzeichnungen,
Angaben über die gesicherte Erschließung.
Bereits vorliegende Mitteilungen oder Bescheide
Fristen
Der Vorbescheid gilt drei Jahre und bindet die Baugenehmigungsbehörde für diesen Zeitraum an die im Vorbescheid getroffenen Aussagen. Sie können innerhalb dieser 3 Jahre eine Verlängerung des Vorbescheides um ein weiteres Jahr beantragen.
Verfahrensablauf
Sie reichen Ihren Antrag zusammen mit den notwendigen Unterlagen ein.
Die zuständige Stelle prüft Ihren Antrag, fordert gegebenenfalls fehlende Unterlagen und Dokumente bei Ihnen nach und beteiligt diejenigen Stellen, deren Beteiligung oder Anhörung für die Entscheidung über Ihre Bauvoranfrage vorgeschrieben ist oder ohne deren Stellungnahme die Bauvoranfrage nicht beurteilt werden kann.
Nach Abschluss der Prüfungen erhalten Sie den Bauvorbescheid.
Wenn Sie anschließend für Ihr Bauvorhaben einen Bauantrag stellen, verweisen Sie auf den bereits erteilten Bauvorbescheid.
Einreichung eines Bauantrags
Ein Bauantrag muss bei der zuständigen Bauaufsichtsbehörde in Hamburg gestellt werden. Der Antrag muss alle notwendigen Unterlagen enthalten, wie zum Beispiel Baupläne, Baubeschreibungen und Nachweise über die Einhaltung der baurechtlichen Vorschriften.
Er enthält Anlagen, z. B. für Abwasserbeseitigung.
Der Blockrandstreifen an der Bergstedter Chaussee 36 darf bebaut werden
Die Konzeption zielt darauf ab, eine geordnete städtebauliche Entwicklung im Kontext der Magistralenentwicklung zu gewährleisten und die charakteristische Struktur des Gebiets zu erhalten. Dies beinhaltet die Erhaltung des Blockrandstreifens als prägendes Element des Stadtbildes und die Förderung einer Mischung aus Wohn- und Gewerbenutzungen.
Hamburg kann das erweiterte Vorkaufsrecht nutzen, um Grundstücke zu erwerben, die für die Schaffung von Wohnraum geeignet sind.
Dies kann auch gegen den Willen des bisherigen Eigentümers geschehen, wenn ein öffentliches Interesse besteht.
Abwendungsvereinbarung
Eine Abwendungsvereinbarung kann zwischen dem Eigentümer und der Gemeinde geschlossen werden, um das Vorkaufsrecht abzuwenden. Diese Vereinbarung verpflichtet den Eigentümer, das Grundstück innerhalb einer bestimmten Frist zu bebauen oder zu bestimmten Bedingungen zu veräußern.
Ein Vermessungsplan mit Absteckung wurde beauftragt
Im Rahmen dieser Vermessung wurde auch der erhaltenswerte Baumbestand nahe dem Grundstück präzise eingemessen. Dies ist ein wesentlicher Schritt, um die Planung und den Bau des Wohnquartiers in Einklang mit der vorhandenen natürlichen Umgebung zu gestalten.
- Download PDF-Format
- Download DWG-Datei
Bedeutung für das Bergstedt Wohnquartier:
Schutz des Baumbestands: Der Bergstedt Wohnquartier legt großen Wert auf Nachhaltigkeit und den Erhalt natürlicher Ressourcen. Durch die Einmessung des Baumbestands wird sichergestellt, dass die Planung des Quartiers den Erhalt wertvoller Bäume berücksichtigt. Diese Bäume tragen nicht nur zur ökologischen Qualität des Quartiers bei, sondern verbessern auch die Lebensqualität der zukünftigen Bewohner.
Präzise Bauplanung: Mit dem Vermessungsplan, der den Baumbestand umfasst, kann die Bauplanung so angepasst werden, dass keine Schäden an den Bäumen oder ihren Wurzeln entstehen. Dies ermöglicht eine präzise Positionierung der Gebäude und Infrastrukturen, um den vorhandenen Baumbestand bestmöglich zu schützen.
Integration in das Landschaftskonzept: Der eingemessene Baumbestand wird in das Landschafts- und Grünflächenkonzept des Bergstedt Wohnquartiers integriert. Dies unterstützt das Ziel, ein harmonisches Wohnumfeld zu schaffen, in dem Natur und Bauwerke miteinander in Einklang stehen.
Unterstützung im Genehmigungsverfahren: Die Dokumentation des Baumbestands im Vermessungsplan ist ein wichtiger Bestandteil für die Einholung von Baugenehmigungen. Sie zeigt, dass das Projekt die gesetzlichen Anforderungen zum Schutz der Natur erfüllt, was für das Bergstedt Wohnquartier von besonderer Bedeutung ist.
Optimierte Flächennutzung: Durch die genaue Vermessung des Baumbestands kann die Baufläche optimal genutzt werden. Die Planung kann so durchgeführt werden, dass sowohl der Erhalt der Bäume als auch die effiziente Nutzung des Grundstücks gewährleistet ist.
Ein Bodengutachten ist in Arbeit:
Tragfähigkeit des Bodens: Selbst bei oberirdischen Bauwerken ist die Tragfähigkeit des Bodens von entscheidender Bedeutung. Das Bodengutachten stellt sicher, dass der Boden das Gewicht der Gebäude ohne übermäßige Setzungen tragen kann. Dies ist besonders wichtig, um spätere Schäden an der Bausubstanz zu vermeiden, die durch ungleichmäßige Setzungen verursacht werden könnten.
Gründungsberatung: Auch ohne unterirdische Bauwerke wie Keller muss die Gründung der Gebäude sorgfältig geplant werden. Ein Bodengutachten gibt Aufschluss darüber, welche Gründungsart (z.B. Flachgründung oder Tiefgründung) für die spezifischen Bodenverhältnisse am besten geeignet ist. Dies hilft, teure Anpassungen während der Bauphase zu vermeiden und die Langlebigkeit der Gebäude zu gewährleisten.
Vermeidung von Bauverzögerungen: Durch das Gutachten können unvorhergesehene Bodenprobleme, wie z.B. schlecht tragfähige Schichten oder organische Einschlüsse, frühzeitig erkannt und berücksichtigt werden. Ohne diese Informationen könnten während des Baus unerwartete Schwierigkeiten auftreten, die zu Verzögerungen und höheren Kosten führen.
Altlastenprüfung: Das Bodengutachten hilft, mögliche Altlasten auf dem Grundstück zu identifizieren, auch wenn keine unterirdischen Bauten geplant sind. Altlasten können den Bau verzögern und zusätzliche Kosten verursachen, wenn sie nicht im Vorfeld erkannt und saniert werden. Eine frühzeitige Erkennung minimiert diese Risiken.
Grundwasserverhältnisse: Auch ohne Keller ist es wichtig, die Grundwasserverhältnisse zu kennen. Diese können die Stabilität der Baugrube während der Errichtung beeinflussen und sind relevant für die Planung von Entwässerungssystemen oder der Gestaltung von Außenanlagen. Das Wissen um den Grundwasserspiegel kann auch helfen, Feuchtigkeitsprobleme in den unteren Geschossen zu vermeiden.
Bodenbeschaffenheit und Versickerungsfähigkeit: Ein Bodengutachten gibt Aufschluss über die Bodenbeschaffenheit, was für die Planung von Außenanlagen und für das Regenwassermanagement wichtig ist. Zum Beispiel, wie gut der Boden Regenwasser aufnehmen und versickern lassen kann. Dies ist besonders relevant in der Stadtplanung, um Überschwemmungen zu verhindern und nachhaltige Lösungen wie Versickerungsmulden zu planen.
Planungssicherheit: Das Gutachten bietet eine verlässliche Grundlage, um fundierte Entscheidungen zu treffen. Es sorgt dafür, dass das Bauprojekt ohne unvorhergesehene Überraschungen realisiert werden kann, was zur Einhaltung von Budget und Zeitplan beiträgt.
Erfüllung gesetzlicher Vorgaben: Auch ohne Keller können in bestimmten Fällen gesetzliche Anforderungen ein Bodengutachten erforderlich machen, insbesondere in sensiblen oder urbanen Gebieten. Es hilft, alle gesetzlichen Auflagen zu erfüllen und mögliche rechtliche Probleme zu vermeiden.
